1/6
پیش فروش واحد های 155 متری بندر انزلی پاسداران
خرید و فروش آپارتمان (مسکونی)
8 ماه پیش
لاکچری
مدرن
تهاتر
پیش فروش
مبلغ فروش
7,750,000,000 تومان
بندر انزلی
محله
امکانات
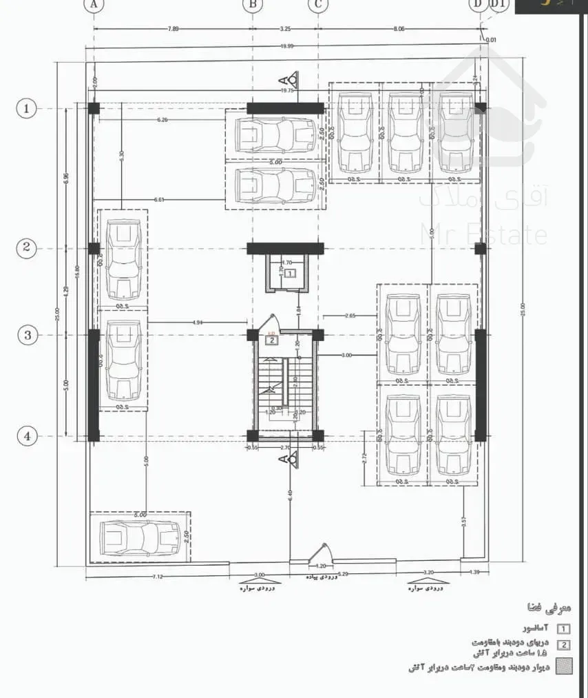
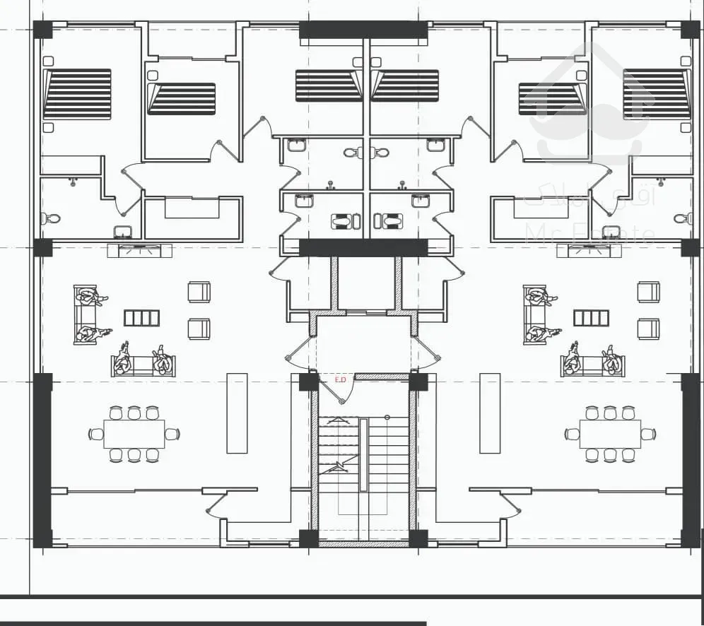
- آسانسور
- انباری
- بالکن
- سونا
- جکوزی
- اعلام حریق
- اطفا حریق
- اتاق مستر
توضیحات
متراژ هر واحد 155 متر فول امکانات. سیستم هوشمند . دستیار هوش مصنوعی فارسی اضطراری به همراه پنل خورشیدی. استفاده از بهترین متریال ها 6 طبقه هر طبقه 2 واحد در کل ۱۲ واحد کل واحد ها موجود هست 3 خواب قیمت از طبقه اول متری 50 میلیون و طبقات بالا هر طبقه 2 میلیون افزایش قیمت پارکینگ اختصاصی تحویل 1405 آدرس ملک بندر انزلی کیلومتر 5 خیابان پاسداران روبروی هتل سفیر بر دوم
آگهی های مشابه

